Prodej novostavby bytu 3+kk, Olomouc - Loudova, SLAVONÍNSKÉ ZAHRADY - dům B2

SlavoninskaB_kameraJ_rel01b 2
SlavoninskaB_kameraK_rel01b 3
B241
SlavoninskaB_kameraH_rel01b
SlavoninskaB_kameraE_rel01b
SlavoninskaB_kameraA_rel01b
4

8 988 000 Kč

Z pověření developera Vám realitní kancelář ALLE reality&development s.r.o. v exkluzivním zastoupení nabízí již V. etapu úspěšného Projektu Slavonínské zahrady, jež navazuje prodejem – budovy B. Projekt umožňuje svým rezidentům dostupné bydlení v příjemné a klidné lokalitě města Olomouce. Více informací najdete na webových stránkách alle.

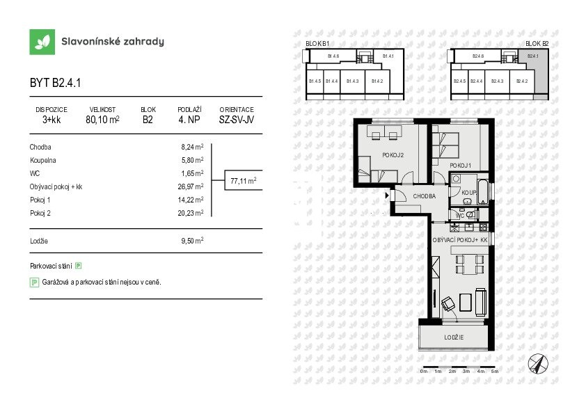
Byt B2.4.1 o dispozici 3+kk má podlahovou plochu 80,1 m², terasa o velikosti 9,5 m² a nachází se ve 4.NP bytového domu s nízkým počtem bytových jednotek.

Velkou předností lokality je dostatek zeleně, odpočinková zóna kolem přírodního rybníku Hamrys, cyklistická stezka, to vše pro čas odpočinku. Skvělá občanská vybavenost, vynikající dostupnost MHD včetně nově prodloužené tramvajové tratě, a bezproblémový výjezd na dálnici naopak usnadní pracovní část dne.

Vysoký komfort bydlení je zajištěn moderním standardním vybavením: podlahové vytápění po celé ploše jednotek, obložkové zárubně, vinylové podlahy, keramické obklady - vše dle volby klienta a také základní příprava pro venkovní žaluzie. Garážová stání a komory k dokoupení jsou samozřejmostí. Vyberte si své vysněné bydlení včas!

Klient hradí nad rámec kupní ceny poplatek za právní a administrativní servis.

Lokalita

Ulice: Loudova
Město: Olomouc
Okres: Olomouc

Plocha

Užitná: 80 m²
Terasa: 10 m²

Další parametry

Celková cena: 8 988 000 Kč
ID zakázky: 00905
Počet podlaží: 4
Podlaží umístění: 4. NP
Poznámka k ceně: včetně provize
Budova: Cihlová
Stav objektu: Novostavba
Vlastnictví: Osobní
Zástavba: Obytná
Terasa: ano
Doprava: Vlak, Dálnice, Silnice, MHD, Autobus
Elektřina: 230V
Ukazatel ENB: B - Velmi úsporná
Podle vyhlášky: vyhláška 78/2013 Sb
En. náročnost b.: 143
Komunikace: Asfaltová
Bezbariérový: ano
Výtah: ano